Меню сайта
          
          
        
            Двигатель
          
          
        
            Категории раздела
          
          
        
            Найдите на сайте
          
          
        
            Наш опрос
          
          
        
            Наши посетители
          
          
        
            Статистика
          
          
        
            Новости мастерской
          
          
        
            Реклама
          
          
        
            Сегодня на форуме
          
          
        
        Главная » Технологии ремонта » Стройка дома » Каркасный дом » SMPLy Mod каркасный прототип
        
        
          SMPLy Mod каркасный прототип
        
         
        
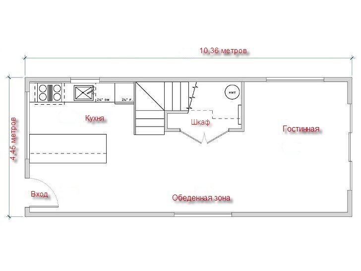
        Этот модульный сборный дом был спроектирован, изготовлен, и установлен в течение всего лишь 9 недель фирмой SMPLy Mod! В двухэтажном доме две спальни, одна ванная комната, на первом этаже совмещены кухня и гостиная.
Каждый этаж модуль имеет площадь 150 квадратных метров или до 300 квадратных метров для всего дома. Затраты на проектирование и строительство дома составило $ 135 000, стоимость 1 квадратного метра составляет $ 450.
Пол, стены, крыши и окна теплоизолированны выше стандартных строительных норм.
Нужен ваш плюс статье!Источник: http://inhabitat.com/modern-simple-modular-prefab-prototype-lands-in-british-colombia/
| Всего комментариев: 0 | |
 
  
  
      











 
                       
                       
                       
                       
                       
                       
                       
                       
                       
                       
                       
                       
                       
                      