Меню сайта
          
          
        
            Двигатель
          
          
        
            Категории раздела
          
          
        
            Найдите на сайте
          
          
        
            Наш опрос
          
          
        
            Наши посетители
          
          
        
            Статистика
          
          
        
            Новости мастерской
          
          
        
            Реклама
          
          
        
            Сегодня на форуме
          
          
        
        Главная » Технологии ремонта » Стройка дома » Архитектурные дома » Промежуток
        
        
           
          
        
Поселение Ganghofer было построено в 1930-е годы и как исторические памятники находятся под охраной. Чтобы оставить существующие дома не тронутым, архитектор построил прозрачную и структурную поддержку. Так же, как мост между существующим домом и новым домом.
        
           
  
          
           
  
          
        Функция стекла в качестве визуального разделения при одновременной функциональной связи. Полный сайдинг остается внешней заметно, здание получилось полностью в его пропорции.
        
          
          
          
          
           
  
          
        
Расширение здания контрастирует с его простором, огромная гостиная, кухня и столовая. И все они являются небольшими кусочками, удобными и современными, щедрыми в жизненных ситуациях непосредственно.
        
           
  
          
             
            
          
          
           
          
          
        
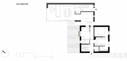
Максимальное использование новых зданий как жилое пространство достигается полностью, также за счет прямого дневного света фонарей через застекленную лестницу в подвал. Жилая площадь составляет 198 м².
        
        
          
           
          
          
           
  
        
Нужен ваш плюс статье!
          Промежуток
        
        Поселение Ganghofer было построено в 1930-е годы и как исторические памятники находятся под охраной. Чтобы оставить существующие дома не тронутым, архитектор построил прозрачную и структурную поддержку. Так же, как мост между существующим домом и новым домом.
 
  
 
  


 
  
Расширение здания контрастирует с его простором, огромная гостиная, кухня и столовая. И все они являются небольшими кусочками, удобными и современными, щедрыми в жизненных ситуациях непосредственно.
 
  


Максимальное использование новых зданий как жилое пространство достигается полностью, также за счет прямого дневного света фонарей через застекленную лестницу в подвал. Жилая площадь составляет 198 м².


 
  
Нужен ваш плюс статье!
Источник: http://www.fabi-architekten.de/projekte/haus_z/
| Всего комментариев: 0 | |
 
  
  
      
 
                       
                       
                       
                       
                       
                       
                       
                       
                       
                       
                       
                       
                       
                      