ГлавнаяРегистрацияВход Мастерская ремонта и стройки
Четверг, 10 Октябрь 2013, 11:42
Форма входа

Меню сайта

Рекламка

Категории раздела
Проекты мебели [23]
Процесс изготовления [15]
Проекты мебели - чертежи [28]
Дополнительная информация [31]

Найдите на сайте

Наш опрос
Что значит для вас ремонт?
Всего ответов: 82

Поделиться

Наши посетители
master, РоманБ, додо, zet

Статистика

Просматривают сайт: 16
В гости пришли: 16
Дорогие гости пользователи: 0

Новости мастерской
[09 Октябрь 2013]
Курорт горячего источника Sheraton Huzhou в виде арки часть китайской культуры (0)
[07 Октябрь 2013]
Новая технология в ванной Зеркало 2.0 (0)
[05 Октябрь 2013]
Первый плавучий в мире жилой комплекс начнут строит в 2014 году! (1)

Реклама

Сегодня на форуме

Реклама2

Статистика

В Мастерской

Главная » Статьи » Изготовление мебели » Проекты мебели

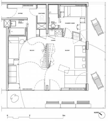
Вся квартира большая мебель-стенка

Проектная группа H2o архитекторов была приглашена переосмыслить квартиру горнолыжного курорта в Менюир, Франция.  Просьба была, чтобы реализовать невозможное: увеличить жизненное пространство, не затрагивая структуру, создать 2 ванны вместо одного существующего, сохранить число мест 8 в 55 м2.



Вместо того, чтобы мебель соответствовала в квартире, архитекторы решили соответствовать квартиру в мебели! Тем не менее это абсурдная идея сразу же облегчило все ограничения, связанные с изложением ограниченного пространства.

 

Большая деревянная кривая проходит через все пространство. Она связывает все функции, создает большое жизненное пространство и открывается панорамный вид на горы. Эта мебель-стенка включает в себя все необходимое для ежедневного использования. Уголок для чтения у внутреннего окна, кухня находиться спиной к ванной комнатой. Элементы мебели не громоздкие, и а она высвобождает большое пространство вокруг него и максимизирует это первичные функциональные возможности.

 

Вторичная система позволяет спальные районы закрывать занавесками, которые катятся в существующую центральную стену. Центральное пространство все белое. В спальных местах есть также лампы, небольшие полки хранения и удобные мирный спальный уголок.



Вся установка сделана из дерева, а именно светлая березовая фанера для внутреннего пространства и фанера американский орех для изогнутых стен.





Нужен ваш плюс статье!
Источник: http://www.h2oarchitectes.com/
Категория: Проекты мебели | Добавил: Гули (22 Октябрь 2012)
Просмотров: 1030 | Рейтинг: 4.0/1
Всего комментариев: 0


Новинки статьи

В мастерской
Товары и услуги
Вилла P студии Атриум
Новая форма игры для детей детский домик Сэм + Пэм
Подготовка приклеивания
Shed - Историческое промышленное строение, переделанное в эффективный современный дом.
Кладка пенобетонных блоков + 2 видео
Гостиная ATZ в Мехико
[01 Октябрь 2011]
[Реклама, оформление]
Ваше рекламное объявление на этом место с фото за 300 руб в месяц

[07 Октябрь 2013]
3D полимерные полы 
[07 Октябрь 2013]
Двери и остекление на основе теплого профиля из нержавейки или окрашенного по шкале RAL. 
[05 Октябрь 2013]
Бригада мастеров предлагает услуги 
[04 Октябрь 2013]
Устанавливаем фундаменты на винтовых сваях любой сложности. Продаем винтовые сваи от производителя! 
[14 Сентябрь 2013]
Требуются штукатуры 
[08 Сентябрь 2013]
Ремонтно-отделочные работы 
[23 Август 2013]
Огнезащитная пропитка для дерева ВИМ-1 
[21 Август 2013]
Ремонт ванной комнаты в Москве - частный мастер 
[20 Август 2013]
Перила и ограждения из нержавейки 
[01 Август 2013]
Огнезащитная пропитка для дерева ВИМ-1 

Добавлять комментарии могут только зарегистрированные пользователи.
[ Регистрация | Вход ]

  При копировании материала обязательно прямая ссылка на источник материала сайта 2011 © 2013
Хостинг от uCoz