Меню сайта
Нужное вам
Категории раздела
Найдите на сайте
Наш опрос
Наши посетители
Статистика
Новости мастерской
Реклама
Сегодня на форуме
Главная » Технологии ремонта » Стройка дома » Архитектурные дома » Парадокс дом
Двухуровневый склад превратился в шикарный мультимедийный дизайн-студию, Парадокс дом находит идеальный баланс между функциональностью и стилем, отражая его владельца уникального вкуса и образа жизни.
Геометрические фигуры и линии современные и впечатляющие, со вкусом сделано уникальные рабочие места.
Глядя на парадокс дом, вертикально позволяет видеть гармонию в ее разработке - организованный хаос горизонтальных и вертикальных элементов, идеально подходит вплоть до последней детали.
Сталь и стекло лестница визуального восприятия, создавая иллюзию плавающих из одного раздела в другой раздел собственности.


http://www.thexss.com/
Нужен ваш плюс статье!
Парадокс дом
Двухуровневый склад превратился в шикарный мультимедийный дизайн-студию, Парадокс дом находит идеальный баланс между функциональностью и стилем, отражая его владельца уникального вкуса и образа жизни.
Геометрические фигуры и линии современные и впечатляющие, со вкусом сделано уникальные рабочие места.
Глядя на парадокс дом, вертикально позволяет видеть гармонию в ее разработке - организованный хаос горизонтальных и вертикальных элементов, идеально подходит вплоть до последней детали.
Сталь и стекло лестница визуального восприятия, создавая иллюзию плавающих из одного раздела в другой раздел собственности.

Верный своему имени, повторяющейся темой в дизайне дома Парадокс заключается отличие темных материалов в сочетании с совершенно белыми стенами, матовый серебристый алюминий и мозаичная плитка смягчается присутствием шелковистой ткани. Потому что большая стена сжимает разные уровни и пространства становится все более узким. В офисе на верхнем этаже были разработаны стеклянные стены, для обеспечения открытого потока собственности.

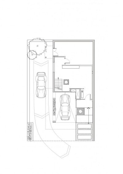
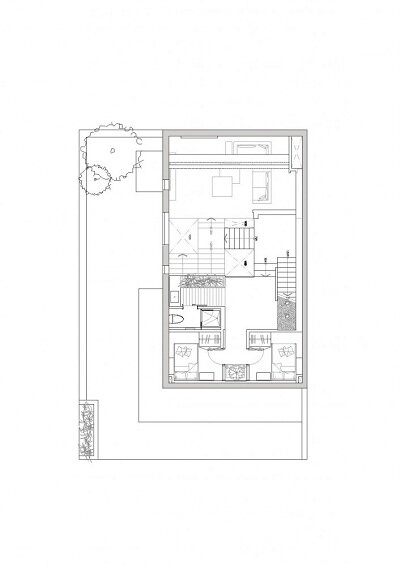
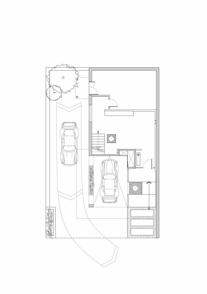
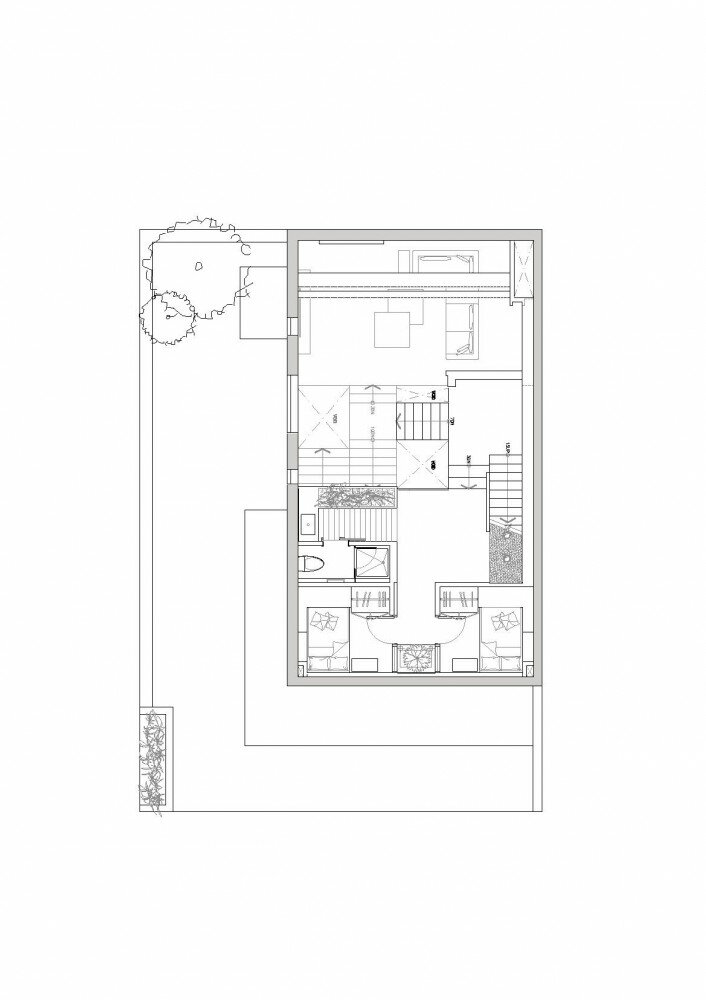
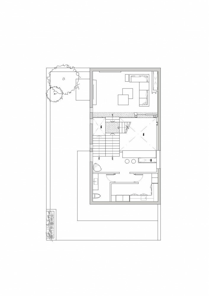
Представлен план дома
http://www.thexss.com/
Нужен ваш плюс статье!
Источник: http://www.archdaily.com/248460/paradox-house-the-xss/
| Всего комментариев: 1 | ||
|
||











