 Чтобы провести хорошее современное отопление конечно вам понадобиться современный котел, в данном случае я использовал современный газовый котел, в котором встроено помимо горелки еще и расширительный бак, циркуляционный насос для воды, также обеспечивает горячею воду для ванны и кухни, срабатывает автоматика в случае излешнего давления воды. При падении температуры в помещении ниже 5°С, в котле автоматически срабатывает система защиты от замерзания труб отопления. Автоматически запускается циркуляционный насос, обеспечивая постоянную циркуляцию теплоносителя в системе.  Тем самым обеспечивается сохранность инженерных систем дома. Встроенно теплообменник из нержавеющей стали, по сравнению с медным, в 20 раз снижает вероятность коррозии, что значительно увеличивает срок его службы. КПД теплообменника из нержавеющей стали значительно больше, чем у медного, что позволяет получить гораздо больше горячей воды. Еще есть датчик APS, который четко контролирует необходимое для горения количество газа, тем самым обеспечивает полное сгорание и значительно сокращает расход газа. Эффективный вентилятор обеспечивает безопасное горение, что позволяет использовать котел в многоквартирных домах Управляется такой котел через пульт управления, который надо закрепить на стене в комнате, ведь в пульте управления находиться датчик температуры воздуха и оно показывает температуру комнаты, а также еще показывает температуру отопления и воды. Вам достаточно все лишь установить нужную температуру для комнаты и для горячей воды и котел сам будет регулировать температуру.  Есть двухконтурный газовый котлы, они спроектированы с закрытой камерой сгорания. Обе стадии процесса горения (вход кислорода и выход окиси углерода) отделены друг от друга и совершенно изолированы. Котёл может забирать кислород для горения из помещения или с улицы.
Чтобы провести хорошее современное отопление конечно вам понадобиться современный котел, в данном случае я использовал современный газовый котел, в котором встроено помимо горелки еще и расширительный бак, циркуляционный насос для воды, также обеспечивает горячею воду для ванны и кухни, срабатывает автоматика в случае излешнего давления воды. При падении температуры в помещении ниже 5°С, в котле автоматически срабатывает система защиты от замерзания труб отопления. Автоматически запускается циркуляционный насос, обеспечивая постоянную циркуляцию теплоносителя в системе.  Тем самым обеспечивается сохранность инженерных систем дома. Встроенно теплообменник из нержавеющей стали, по сравнению с медным, в 20 раз снижает вероятность коррозии, что значительно увеличивает срок его службы. КПД теплообменника из нержавеющей стали значительно больше, чем у медного, что позволяет получить гораздо больше горячей воды. Еще есть датчик APS, который четко контролирует необходимое для горения количество газа, тем самым обеспечивает полное сгорание и значительно сокращает расход газа. Эффективный вентилятор обеспечивает безопасное горение, что позволяет использовать котел в многоквартирных домах Управляется такой котел через пульт управления, который надо закрепить на стене в комнате, ведь в пульте управления находиться датчик температуры воздуха и оно показывает температуру комнаты, а также еще показывает температуру отопления и воды. Вам достаточно все лишь установить нужную температуру для комнаты и для горячей воды и котел сам будет регулировать температуру.  Есть двухконтурный газовый котлы, они спроектированы с закрытой камерой сгорания. Обе стадии процесса горения (вход кислорода и выход окиси углерода) отделены друг от друга и совершенно изолированы. Котёл может забирать кислород для горения из помещения или с улицы.
        
        
Прежде рассчитайте тепло потери здания, исходя из этого вам нужно определенное количество радиаторов отопления, не забудьте про трубы отопления решите однотрубное или двухтрубное проведете отопление,  лично проводил однотрубное в одноэтажном доме и довольно успешно все батареи отопления оставались горячими, двухтрубное отопление желательно проводит в двухэтажном доме. В двухтрубном системе отопления есть такой нюанс последнея батарея отопления холоднее чем другие, поэтому приходится регулировать батарею отопления через кран.
На данном фото 2-х трубное система отопления, подача и обратка, трубы проходят в стене и выводятся только концы труб которые будут смотреться аккуратно.
Перед установкой котла необходимо выяснить, какой тип газа подается к месту использования изделия и проверить состояние электропитания.
        Не используйте тип газа, отличающийся от того, который указан в технических данных котла. Использование другого типа газа может повлечь нарушение процесса горения и привести к пожару или взрыву.
Не устанавливайте устройство рядом с огнеопасными веществами Установка устройства рядом с огнеопасными веществами, такими как бензин, керосин, бензол или клей, может привести к пожару.
        Если устройство устанавливается не в отдельной котельной, а в помещении, соединяющемся с другими комнатами, необходимо установить специальную воздухозаборную /дымоотводящую систему иначе можете отравится угарным газом.
   Убедитесь в том, что помещение, в котором устанавливается котёл, достаточно просторно, а стены и потолок выполнены из теплостойких материалов.
    Котел должно устанавливаться на стену, изготовленную из негорючих веществ (в ином случае необходимо использовать термоизоляционные панели).
           Термоизоляционные панели должны быть выполнены из металла толщиной 3 мм или другого негорючего вещества.
   Устройство необходимо установить в котельной, чтобы защитить его от воздействия осадков и ветра. Дождь и ветер могут нарушить процесс горения, что может привести к отравлению угарным газом.
        Не следует устанавливать котёл в местах с повышенной влажностью, например в ванных комнатах и других замкнутых пространствах.
           1. Недостаток кислорода может нарушить процесс горения и, как следствие, вызвать отравление угарным газом.
           2. Кроме того, эксплуатация в таких условиях может привести к сбою в работе котла.
Запрещается устанавливать котёл над нагревающимися приборами и рядом с кондиционерами. Это может нарушить процесс горения и, как следствие, вызвать отравление угарным газом
При установке котла необходимо подготовить отверстие для спуска воды
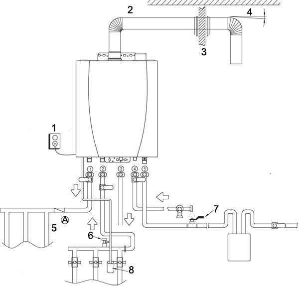
1. Выход отопления
2. Вход отопления
3. Фильтр-грязевик
4. Газовое отверстие
5. Отерстие входа холодной воды
6. Выход горячей воды
Схема расположения трубопроводов
Установка дымоотводящей трубы должна выполняться в соответствии с интрукцией.
1. Источник питания. Переменный ток 220В
2. Используйте только соответствующие требованиям дымоотводящие трубы
3. Стена
4. Угол наклона 50
5. Распределитель
6. Автоматический воздухоотводчик
7. Газовый кран
8. Сливной шланг, диаметр трубки: 18
А - Обратный клапан, установленный на трубе подачи сетевой воды, служит для предотвращения противотока при остановке насоса
Обязательные действия
      По завершении установки необходимо проверить все трубы на наличие протечек или других дефектов.
         По завершении работ по установке все трубы, за исключением газопровода, следует теплоизолировать, чтобы предотвратить замерзание.
Принципы правильного монтажа электропроводки
        1. При подготовке источника питания с напряжением 220В, кабелей и соединении проводов необходимо соблюдать региональные/местные нормы, существующие в этой области
        2. Перед установкой устройства в областях с сетевым напряжением 220В необходимо проверить надежность проводки; при обнаружении каких-либо дефектов следует принять необходимые меры по их устранению
        3. Если устройство устанавливается в области с сетевым напряжением 110 В, требуется повысить сетевое напряжение до 220В с помощью отдельного трансформатора
        4. Не подключайте к сетевой розетке другие приборы, кроме котла. Сетевая розетка должна располагаться на расстоянии не менее 300 мм от котла.
Монтаж газопровода
Монтаж газопровода может выполняться только службами, специализирующимся на установке газопроводов.
 
        1. Диаметр газовой трубы, подключаемой к устройству, должен составлять 15D(PT1/2') или 20D(PT3/4") в зависимости от модели.
        См. технические характеристики, приведенные в данном руководстве (Р63-Р66).
        2. Газопроводные трубы должны быть изготовлены из гибкого металла, прошедшего соответствующую проверку на пригодность. При использовании сжиженного газа не следует устанавливать предохранительный клапан, однако в этом случае необходимо установить средний газовый кран.
        3. Используя сжиженный газ, соблюдайте следующие требования.
- клапан подачи сжиженного газа должен являться регулятором низкого давления и быть предназначенным для бытового использования.
        - для одновременной подачи газа из двух баллонов к ним подсоединяется двухходовой клапан.
        - при использовании баллона малой емкости испаряемость газа недостаточна что приводит к неэкономичному расходу газа и нарушению нормальной работы системы.
4. Газовая труба котла подсоединяется к главному газопроводу напрямую; запрещается подсоединять другие приборы к газопроводу.
1.  5. Места соединений можно зафиксировать с помощью гайки, чтобы предотвратить самопроизвольное отсоединение деталей.
        
        Обязательные действия
        По завершении работ по установке газовых труб необходимо провести проверку на наличие утечки газа. Утечка газа может привести к взрыву и, как следствие, к серьезным телесным повреждениям или порче имущества.
        
        Приступайте к монтажу газопровода только после ознакомления с информацией о типе газа, пригодного для данного устройства.
        
| Всего комментариев: 0 | |
| Новинки статьи | В мастерской | Блог | |||||||||||||||||||||||||||||||||||||||||||||||||||||||||
| 
 
 
 
 
 
 | 
 
 
 
 
 
 | 
 
 Товары и услуги 
 
 
 
 
 
 | |||||||||||||||||||||||||||||||||||||||||||||||||||||||||
 
  
  
      





 
                         
                         
                         
                         
                         
                         
                         
                         
                         
                         
                         
                         
                         
                        