жилого дома печами на твёрдом топливе так и для проведения отопления.
Подбор отопительных печей для помещений дома.
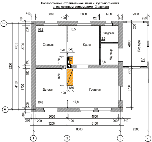
1. Размеры дома и
расположение отопительной печи в нём.
В данном примере расчёта отопления дома предусмотрено четыре отапливаемых помещения:
- 
            гостиная - 17,8 м2, 
- 
            спальня - 10,8 м2, 
- 
            детская комната - 10,8 м2, 
- 
            и кухня - 10,5 м2. 
Примечание:
Детскую комнату устраивают в той комнате, куда не выходят топочные дверцы (отделения).
В детскую комнату должна выходить только сплошная стена печки, во избежание попадания угарного газа в помещение детской комнаты.
 
        На рисунке показан вариант расположения многооборотной отопительной печи (условно печь №1), стенки которой выходят в детскую и в гостиную комнаты. А также кухонная печь (условно печь №2), стенки которой выходят в спальню и в кухню.
Стены дома выбираем в кирпичном варианте.
Кирпич эффективный (многодырчатый, со щелевидными пустотами) объемной массой 1300 кг/м3 - наиболее подходящий для холодной зимней температуры.
Стены дома выполнены сплошной кладкой на холодном растворе с наружной расшивкой швов и внутренней штукатуркой.
Толщина кладки стен 510 мм.
Пример толщины стен взят здесь.
Полы дома выполнены на лагах, перекрытие чердачное деревянное, окна с двойными рамами.
Допустимая расчетная (зимняя) температура наружного воздуха T = -35°С.
Тепловая мощность печного отопления дома рассчитывается в следующем порядке:
a) определяют теплопотери помещений;
b) подбирают отопительную печь соответствующей теплопроизводительности;
c) рассчитывают теплоустойчивость помещений.
2. Определяем теплопотери помещений дома.
Первым фактором тепловой мощности печного отопления дома является определение (расчёт) теплопотерь отапливаемых помещений.
Основные и добавочные потери теплоты следует определять суммируя потери теплоты через отдельные ограждающие конструкции дома.
Расчёт основных и дополнительных теплопотерь наружными стенами приведён в таблице 1:
Таблица 1.
теплопотерь отапливаемых помещений дома.
| Наимено- вание | Комната | Наружные стены | Площадь стен Fнар. (гр1хгр2) м2 | Высота комнат (м) | Норма- тивная темпе- ратура внутри помеще- ния (+)град. | Наруж- ная зимняя темпе- ратура (-)град. | Общая темпе- ратура [гр5-(+)гр6] | Нормативные теплопотери помещений [ ккал/(час х tоС)] | Суммар- ные тепло- потери помеще- ний [ккал/(час х tоС)] (гр7хгр8)или (гр7хгр9) | ||
| длина (м) | ширина (м) | для(рис.7-1-1) внутрен- ней комнаты | для(рис.7-1-2) угловой комнаты | ||||||||
| А | Б | 1 | 2 | 3 | 4 | 5 | 6 | 7 | 8 | 9 | 10 | 
| спальня | угловая | 3,70 | 3,00 | 11,1 | 2,6 | 18 | 30 | 48 | х | 53 | 2544 | 
| детская | угловая | 3,70 | 3,00 | 11,1 | 2,6 | 18 | 30 | 48 | х | 53 | 2544 | 
| гостиная | угловая | 4,80 | 3,70 | 17,8 | 2,6 | 18 | 30 | 48 | х | 71 | 3408 | 
| кухня | неугловая | 3,00 | 3,70 | 11,1 | 2,6 | 18 | 30 | 48 | 28 | х | 1344 | 
| Итого: | 51,1 | х | х | х | х | х | х | 9840 | |||
Примечание:
1. Зная, что 1 ккал/час=1,16Вт получаем теплопотери дома:
9840 ккал/ч х 1,16 = 11414 Вт
2. Нормативные теплопотери помещений (гр.8 и гр.9) принимаем по номограмме (ссылки даны в таблице).
3. Подбор отопительных печей.
Вторым фактором тепловой мощности печного отопления дома является подбор печей для отапливаемых помещений.
Выбираем печь:
- 
            между детской и гостиной - в плане 1,66 х 0,64 = 1,06 м2, т.е. выбранная печь относится к печам большого размера - от 0,7 до 1,0 м2; 
- 
            между спальней и кухней - в плане 1,15 х 0,64 = 0,74 м2, т.е. выбранная печь также относится к печам большого размера - от 0,7 до 1,0 м2; 
Эти расчеты нам пригодятся ниже.
Таблица 2.
тепловой мощности отопительной и кухонной печей.
| п.п. | Наименование и виды отопления | Виды помещений | Размер печки | Площадь теплопередающей поверхности стен печи, F=(периметр х высоту) м2 | Кол-во теплоты с 1 м2 печи (Вт) | Количество теплоты с общей площади печи (Вт) | ||||
| ширина | длина | высота | при 1-й топке в сутки | при 2-х топках в сутки | при 1-й топке в сутки | при 2-х топках в сутки | ||||
| А | Б | В | 1 | 2 | 3 | 4 | 5 | 6 | 7 | 8 | 
| Отопительная печь - Итого: | х | 0,64 | 1,66 | 2,4 | 9,50 | 290-360 сред.325 | 590-600 сред.595 | 3089 | 5655 | |
| 1 | в том числе: | детская | 1,66 | х | 2,4 | 3,98 | 1295 | 2370 | ||
| 2 | гостиная | 0,64 | 1,66 | 2,4 | 5,52 | 1794 | 3284 | |||
| х | а) кухонная печь-боковина | х | 0,79 | 1,15 | 0,77 | 1,49 | х | х | ||
| х | б) кухонная печь (плита) | х | 0,64 | 1,15 | х | 0,74 | х | х | ||
| х | в) выступающая часть над печкой (груба) | х | 0,15 | 1,15 | 2,4 | 3,12 | х | х | ||
| х | г) выступающая часть в соседнее помещение (груба) | х | 1,15 | х | 2,4 | 2,76 | х | х | ||
| Кухонная печь - Итого: | х | х | х | х | 8,11 | 2636 | 4825 | |||
| 3 | в том числе: | кухня | 0,79 | 1,15 | 0,77 | 1,49 | х | х | ||
| 0,64 | 1,15 | х | 0,74 | х | х | |||||
| 0,15 | 1,15 | 2,4 | 3,12 | х | х | |||||
| х | кухонное помещение - Итого: | х | х | х | 5,35 | 1739 | 3183 | |||
| 4 | спальня | 1,15 | х | 2,4 | 2,76 | 897 | 1642 | |||
| Всего: | х | х | х | х | 17,61 | х | х | 6178 | 11310 | |
Для отвода продуктов сгорания целесообразно выложить одну коренную (на собственном фундаменте) трубу, расположенную вблизи передних стенок печей. В месте ввода продуктов сгорания в дымоход следует предусмотреть рассечку, чтобы продукты сгорания не проникали при топке в соседнюю печь.
Высота печи (2,4 м) предусматривает воздушную подушку между печкой и перекрытием (при высоте потолков 2,6 м), для повышения пожаробезопасности.
Расположение теплоотдающих поверхностей принимается с таким расчётом, чтобы обеспечить восполнение теплопотерь помещений.
Спальня, детская, гостиная и кухня отапливаются двумя печками. Общие теплопотери комнат составляют (по табл.1) 11414 Вт.
Недостача теплоты:
11310 Вт - 11414 Вт = - 104 Вт
Или 0,9 % - такая недостача теплоты допустима (в пределах 3% теплопотерь помещения).
Т.е. выбранный вариант размеров печей (при двухразовой топке в сутки) допустим для данного дома, чтобы обогревать жилые помещения при расчетной (зимней) температуре наружного воздуха T = - 35°С.
4. Расчёт теплоустойчивости помещений.
Третьим фактором тепловой мощности печного отопления дома является теплоустойчивость отапливаемых помещений.
Теплоустойчивость отапливаемых помещений определяется величиной амплитуды колебаний температуры комнатного воздуха за промежуток между двумя топками.
Расчёт теплоустойчивости конструкций отапливаемых помещений дома производится по формуле:
АТ = 0,7MQ ⁄ [1 ⁄ (1 ⁄ ZВ + 1 ⁄ УВ)] = 0,7MQ ⁄ ∑BFO
M - значения, с которыми мы будем работать, даны ниже в таблице 3.
B и Fo - значения, с которыми мы будем работать в таблице 5 (по гр. 6).
Таблица 3.
| Активный объём печи, м3 | М = при толщине стенок топливника и дымооборотов, см | Активный объём печи, м3 | М = при толщине стенок топливника и дымооборотов, см | ||
| более 7 см | 12 см и более | более 7 см | 12 см и более | ||
| 0,4 | 0,65 | - | 1,6 | 0,34 | 0,18 | 
| 0,6 | 0,6 | 0,5 | 1,8 | 0,32 | 0,16 | 
| 0,8 | 0,5 | 0,4 | 2 | 0,31 | 0,14 | 
| 1 | 0,45 | 0,3 | 2,2 | 0,3 | 0,13 | 
| 1,2 | 0,4 | 0,25 | 2,6 | 0,28 | 0,12 | 
| 1,4 | 0,36 | 0,21 | 3 | 0,26 | 0,11 | 
Для упрощения вычислений коэффициентов теплоустойчивости ниже в таблице 4 приведены значения выражения:
[1 ⁄ (1 ⁄ ZВ + 1 ⁄ УВ)] Вт ⁄ (м2 х град)
- для наиболее распространённых строительных ограждающих конструкций (стен, полов и потолков)-
Таблица 4.
теплоустойчивости ограждающих конструкций.
| Наименование ограждающих конструкций дома | Коэф- фициент тепло- устойчи- вости | Наименование ограждающих конструкций дома | Коэф- фициент тепло- устойчи- вости | 
| Стены наружные - | х | Перекрытия чердачные - | х | 
| 1. Кирпичные стены - со штукатуркой на растворе: | х | 7. Деревянный потолок без штукатурки при толщине не более 25 мм | 3,6 | 
| - холодном | 5,17 | 8. Конструкция перекрытия, стоящая из: | х | 
| - тёплом | 5,11 | - штукатурки известковой толщ.20 мм и подшивки дощатой толщ. более 20 мм | 4,3 | 
| 2. Деревянные стены (рубленные, брусковые): | х | - фанеры толщ. 5 мм, воздушной прослойки и горбылей толщиной более 20 мм | 2,7 | 
| - без штукатурки | 3,6 | 9. Фибролитовый потолок со штукатуркой | 3,94 | 
| - со штукатуркой | 4,3 | Полы - | х | 
| 3.Конструкции стен, состоящих из сухой органической штукатурки толщ. 20 мм, воздушной прослойки и кирпичной кладки | 3,84 | 10. Полы на лагах над холодным повалом и утепленные при толщине верхнего настила более 25 мм | 3,0 | 
| Стены внутренние и перегородки - | х | 11. Деревянный настил толщ. более 25 мм в межэтажном перекрытии | 2,8 | 
| 4. Кирпичные - на холодном растворе со штукатуркой | 5,0 | 12. Асфальтовые или бетонные полы | 4,4 | 
| 5. Деревянные - (рубленные, брусковые): | х | Окна и двери - | х | 
| - без штукатурки | 3,4 | 1. Окна и застеклённые двери: | х | 
| - со штукатуркой | 4,2 | - одинарные переплёты | 2,67 | 
| 6. Дощатые перегородки толщиной 40 мм: | х | - двойные переплёты | 5,8 | 
| - без штукатурки | 2,9 | 2. Двери деревянные внутренние | 2,9 | 
| - со штукатуркой | 4,2 | 
далее...
| Всего комментариев: 0 | |
 
  
  
      
 
                         
                         
                         
                         
                         
                         
                         
                         
                         
                         
                         
                         
                         
                        