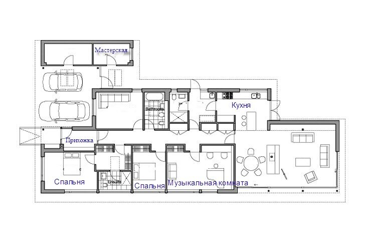
Дизайн Саймон архитекторов Уинстенли, этот современный, одноэтажный дом расположен в Шотландии и был тщательно подобран под ландшафт и построен устойчиво для создания жизненного пространства с очень низким уровнем потребления энергии. Три спальни дома имеют сверхвысокие уровни изоляции, которые отвечают стандартам.
Дом использует классические солнечные пассивные стратегии дизайна, например верхний ряд окон расположен на северной стороне, и комнаты на южной стороне - оба расположены, чтобы воспользоваться солнечным светом и тенью, чтобы минимизировать перегрев. Вход расположен на северо-восточной стороне и находится под крышей, чтобы защититься от господствующих ветров. Дополнительные услуги, такие как кухня, подсобное помещение и санузел расположены в конце структуры. Угол наклона крыши совпадает примерно с углом соседнего склона, а все здание расположено аккуратно в склоне холма.
Каркасные конструкции изготовлен из легкой стали и изолировано по стандарту, чтобы минимизировать потери тепла. Фасад обит кедровыми досками, которая имеет естественный цвет серое серебра, крыша из серого цинка. Все окна и двери остекленные тройным стекло пакетом. Источник тепла насос работает в сочетании с тепла вентиляционных систем, которая нагревает и охлаждает дом эффективно. Тем временем на месте ветряных турбин генерирует все необходимые мощности.
Этот дом из семнадцати зданий в 2011 году получил награды RIBA в Шотландии.
Нужен ваш плюс статье!| Всего комментариев: 0 | |
 
  
  
      














 
                         
                         
                         
                         
                         
                         
                         
                         
                         
                         
                         
                         
                        