Меню сайта
          
          
        
            Категории раздела
          
          
        
            Найдите на сайте
          
          
        
            Наш опрос
          
          
        
            Наши посетители
          
          
        
            Новости мастерской
          
          
        
            Сегодня на форуме
          
          
        
        Главная » Технологии ремонта » Изготовление мебели » Проекты мебели - чертежи » Делаем компьютерный стол
        
        
         
        
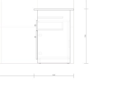
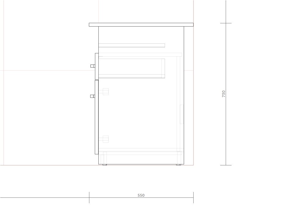
Материал, ламинированное ДСП толщиной 18мм, торцы оклеены кромкой АБС толщиной 2мм.
         
        
Размеры компьютерного стола ширина 110 см, высота 75 см и глубина 55 см.
         
         
        
          
            
        
Нужен ваш плюс статье!
        
          
          
        Категория: Проекты мебели - чертежи | Добавил: Серега2 (10 Август 2012) Просмотров: 10075 | 
        
          
            
        
    
          Делаем компьютерный стол
        
На этой странице представлен чертеж и размеры одного из видов компьютерного стола, которую вы можете изготовит самостоятельно.Материал, ламинированное ДСП толщиной 18мм, торцы оклеены кромкой АБС толщиной 2мм.
Размеры компьютерного стола ширина 110 см, высота 75 см и глубина 55 см.
| № позиции | Наименование детали | Размеры, мм | Количество, шт | 
| 1 | Опоры стола, ноги | 727х450х18 | 3 | 
| 2 | Горизонтальная связь | 666х100х18 | 1 | 
| 3 | Задняя стенка | 360х501х18 | 1 | 
| 4 | Столешница | 1100х550х18 | 1 | 
| 5 | Подставка под системный блок компьютера | 450х250х18 | 1 | 
| 6а | Опора подставки под системный блок | 71х200х18 | 1 | 
| 6б | Опора подставки под системный блок | 71х148х18 | 1 | 
| 7 | Клавиатурная выдвижная полка | 639х350х18 | 1 | 
| 8 | Дверце-фасад | 390х390х18 | 1 | 
| 9 | Дно и верх | 360х440х18 | 2 | 
| 10 | Планка | 360х50х18 | 1 | 
| 11 | Направляющие клавиатурной полки | 1 | |
| 17 | Ручки | 2 | |
| 18 | Петли | 2 | |
| Детали выдвижного ящика | |||
| 13 | Фасад | 140х390х18 | 1 | 
| 14 | Боковины | 100х350х18 | 2 | 
| 15 | Задняя стенка | 100х297х18 | 1 | 
| 16 | Дно | 332х297х3 | 1 | 
Нужен ваш плюс статье!
| Всего комментариев: 0 | |
 
  
  
      






 
                         
                         
                         
                         
                         
                         
                         
                         
                         
                         
                         
                         
                         
                        