Резиденция Rondolino находится в удаленной высокогорной пустыне в штате Невада, среди красот окружающего ландшафта. Дизайн Nottoscale, и является первым построенным прототипом своего T-modulome дома с использованием панельных и энергосберегающих технологий строительства. 
Резиденция Rondolino это загородный дом для итальянского журналиста и писателя, который влюбился в пустыню. Проектирования и строительства велось по переписке по электронной почте, и ни разу клиент и архитектор не поговорили по телефону. В целях снижения затрат, было принято решение использовать панельное строительство, в отличие от модульной конструкции. Хотя результаты были бы аналогичными, архитектор считает, что модульная конструкция была ба лучше из-за удаленности и трудности в поиске квалифицированной рабочей силы в таком удаленном месте. Несмотря на это, дом был завершен, и построен в соответствии с пожеланиями, хотя и за несколько более высокую стоимость.
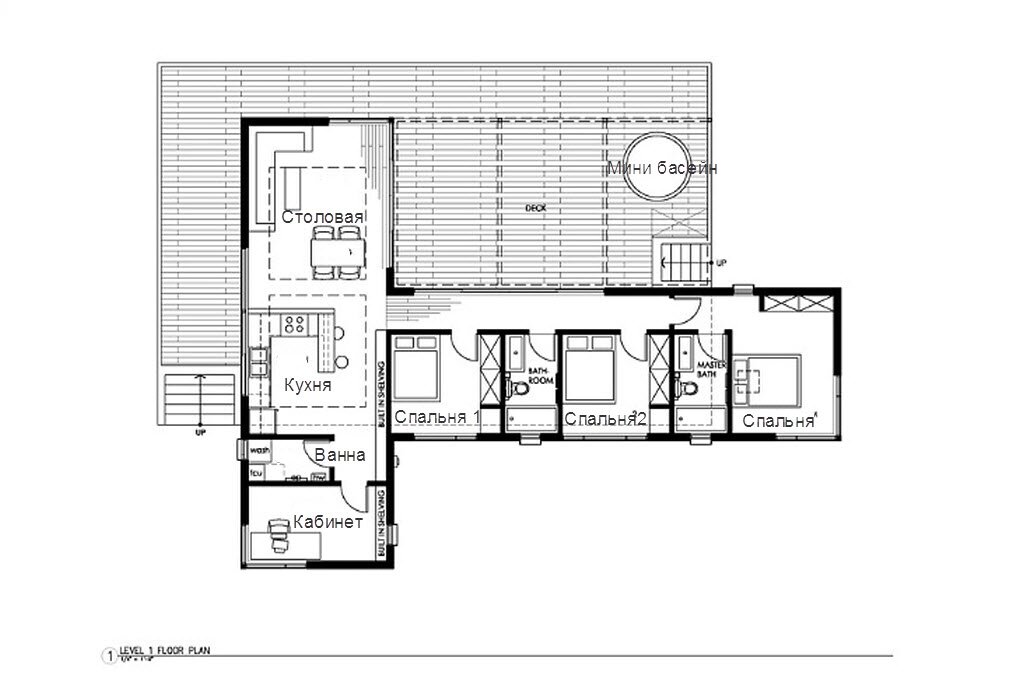
С 3 спальнями и 2 ванными комнаты, компактный 1176 кв.м дом имеет Т-образную компоновку, окружен палубой, которая расширяет жизненное пространство в пустыню. Изоляция дом такая, что сводит к минимуму потери тепла. Все окна двойные застекленные с Low-E покрытием. Во всем бамбуковом паркете и древесине низкое содержание летучих органических красок. Ландшафт вокруг дома включает в себя использование местных видов, которое не требуют технического обслуживания или воды.
Nottoscale не только разрабатывает и управляет строительством дома, но и также украшают интерьеры всей мебелью, в том числе кухню с кастрюлями, сковородками, тарелками, посудой, и даже специями. Таким образом, дом был действительно сдан под ключ – владельцу только необходимо зайти в магазин по дороге домой.
Нужен ваш плюс статье!| Всего комментариев: 0 | |
 
  
  
      














 
                         
                         
                         
                         
                         
                         
                         
                         
                         
                         
                         
                         
                         
                        