Меню сайта
          
          
        
            Категории раздела
          
          
        
            Найдите на сайте
          
          
        
            Наш опрос
          
          
        
            Наши посетители
          
          
        
            Новости мастерской
          
          
        
            Сегодня на форуме
          
          
        
        Главная » Технологии ремонта » Изготовление мебели » Проекты мебели - чертежи » Хлебница - чертеж+видео
        
        
          
         Это хлебница одна из наиболее распространенных конструкций и, следовательно, легче сделать.
        
Необходимые инструменты: дрель, шлифовальная машина, лобзик, маршрутизатор или ручная фрезерная машина и готовые доски определенной толщины. Подойдет хорошо сосна.
         
        
          
            
 
        
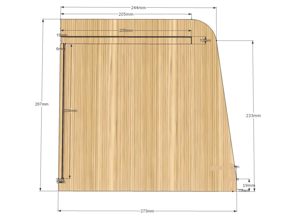
Отрежьте две боковые части одинаковой формы, округление сверху делайте гладкой кривой. Затем вырежьте пазы в каждой из этих лиц внутри. Канавки должна шириною 12мм, глубиною 6мм и длинною 205мм, 2-й паз ширина 3мм, глубина 6 мм и длина 209мм. Наконец, просверлить отверстие 3мм в любую сторону боковины, как показано на рисунке 25мм снизу и 21 мм с фронта. Цель этого в том, что петля штифт будет проходить через это отверстие, в каждую сторону от двери.
         
        
На детали верха впереди угол должен быть сокращен(скос) на 80 градусов. Это делается для того, что дверь хлебницы упирался в верхнюю часть равномерно, а не на очень тонкую грани.
         
        
           
 
           
          
           
 
           
          
Нужен ваш плюс статье!
        
          
          
        Категория: Проекты мебели - чертежи | Добавил: Серега2 (17 Май 2012) Просмотров: 16126 |  | 
        
          
            
        
    
          Хлебница - чертеж+видео
        
        Необходимые инструменты: дрель, шлифовальная машина, лобзик, маршрутизатор или ручная фрезерная машина и готовые доски определенной толщины. Подойдет хорошо сосна.
| Описание | Кол-во | Толщина | Ширина | Длина | 
| База | 1 | 19мм | 273мм | 473мм | 
| Стороны | 2 | 19мм | 267мм | 273мм | 
| Верх | 1 | 12мм | 217мм | 485мм | 
| Дверь | 1 | 12мм | 222мм | 473мм | 
| Задняя стенка - фанера | 1 | 3мм | 209мм | 485мм | 
| Петля (штифт) | 2 | 3мм | 3мм | 38мм | 
Отрежьте две боковые части одинаковой формы, округление сверху делайте гладкой кривой. Затем вырежьте пазы в каждой из этих лиц внутри. Канавки должна шириною 12мм, глубиною 6мм и длинною 205мм, 2-й паз ширина 3мм, глубина 6 мм и длина 209мм. Наконец, просверлить отверстие 3мм в любую сторону боковины, как показано на рисунке 25мм снизу и 21 мм с фронта. Цель этого в том, что петля штифт будет проходить через это отверстие, в каждую сторону от двери.
На детали верха впереди угол должен быть сокращен(скос) на 80 градусов. Это делается для того, что дверь хлебницы упирался в верхнюю часть равномерно, а не на очень тонкую грани.
 
 
 
          
            Края дверцы округлите, нижнею часть с обеих сторон, а верхнею только с одной стороны, при желании установите ручку открывания двери.
          
 
 
            Размеры и вид хлебницы при желании подкорректируйте сами. Если вы решили добавить вентиляционные отверстия, то просверлите отверстия диаметром 3мм в верхней части задней стенки из фанеры. Для завершения работы рекомендуется обработать минеральным маслом или лакировать пищевым лаком. Успехов в работе.
            
        
Нужен ваш плюс статье!
| Всего комментариев: 0 | |
 
  
  
      




 
                         
                         
                         
                         
                         
                         
                         
                         
                         
                         
                         
                         
                         
                        