Для раскроя потолка используется компьютерная программа, которая требует точных размеров. Поэтому мы рекомендуем следовать следующим правилам:
-
все размеры должны быть в сантиметрах, например: 10м 50см = 1050см;
-
для стен менее 50см следует указывать миллиметры, например: 49,7см;
-
чертеж потолка должен иметь вид сверху, как если бы Вы его положили на пол (рис.1,2,3);
-
каждый угол обозначается буквой латинского алфавита, по часовой стрелке (рис.4);
-
снимайте размеры на высоте потолка, указывайте расположение труб, выступов, раздвижных дверей и перегородок;
-
обязательно укажите на чертеже расположение окон и дверей в помещении, это позволит грамотно расположить сварные швы по отношению к свету;
-
начинайте снимать размеры с периметра, затем все диагонали (рис. 5,6);
-
в случае с криволинейными потолками разбейте дуги на отрезки по 20-40см, обозначьте каждую точку латинской буквой и далее снимайте все видимые диагонали.
|
|
Рисунок 1
|
|
Рисунок 2
|
|
|
|
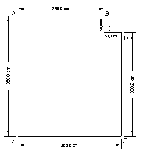
Рисунок 3 - План потолка (вид сверху) |
Рисунок 4 - Обозначьте каждый угол буквой |
|
|
|
|
Рисунок 5 - снимите размеры в см |
Рисунок 6 - Снимите все диагонали |
|
|
|
Рисунок 7 - Снимите все диагонали и обозначьте цвет и вид профиля |
Снятие размеров потолков, имеющих 4-8 углов.
|
|
|
|
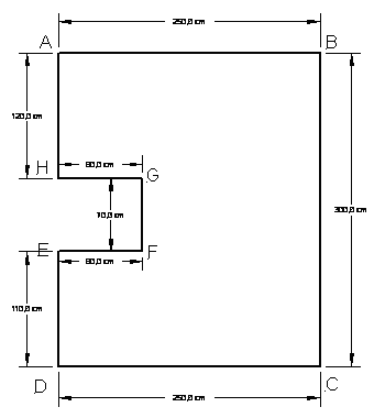
4 угла : периметр и буквенное обозначение углов |
4 угла : 1 диагональ и контрольная диагональ |
|
|
|
Принцип диагоналей :
Речь идет о базовом принципе, основанном на элементарной геометрии. Чтобы определить положение точки и/или определить угол, достаточно знать длину трех сторон треугольника. Таким образом, чтобы убедиться в правильности снятия замеров, необходимо разделить план потолка на треугольники, измеряя стороны и гипотенузу.
|
|
На примере, приведенном выше, помещение имеет 8 углов (от A до H), оно поделено на 6 треугольников (AHG, AGB, BGC, GFC, FDC и EFD) и 5 диагоналей (AG, BG, CG, FC и FD). Для всех чертежей количество диагоналей, необходимых для построения, определяется по следующей формуле:
X - 3 = n, где Х - число углов, n - число диагоналей.
В нашем примере: 8 углов:8 - 3 = 5 диагоналей.
Если в помещении 12 углов: 12 - 3 = 9 диагоналей.
Снятие контрольных диагоналей:
Для большей точности необходимо кроме базовых диагоналей снимать контрольные диагонали, которые позволяют достичь большей уверенности в том, что потолок будет раскроен правильно.
|
|
|
|
Диагонали |
Контрольная диагональ |
В любом случае, после снятия всех размеров необходимо убедиться в следующем:
-
Имеет ли Ваш план вид сверху;
-
Все ли размеры сняты на уровне установки профиля;
-
Все ли размеры сняты по периметру;
-
Обозначен ли цвет полотна и вид профиля, а также расположение окон и дверей;
-
Не забыли ли Вы написать Ваше имя и адрес.
следущий этап 2
| Всего комментариев: 0 | |














