Схема электропроводки представляет собой чертеж плана квартиры, где указаны распределительные группы и однолинейная принципиальная схема (ОПС). К созданию схемы необходимо подойти очень тщательно и аккуратно, так как именно от нее будет зависеть то, как пройдет электромонтаж. Для того создать чертеж квартиры, измерьте все стены рулеткой, а затем начертите ее схему, соблюдая масштаб. Можно начертить и приблизительный план квартиры, однако не забудьте о том, что это может стать причиной различных трудностей, появившихся во время монтажа. Для чертежа необходимо создать 7-10 копий, чтобы на каждой из них было начерчено не более одной группы, иначе схемы будут выглядеть нечитаемыми. На чертеже должны быть отображены следующие элементы:

Распределительные группы – группы точек (от одной и более), которые подключаются к одному автомату квартирного щита. Не рекомендуется подключать всю проводку к одной группе. Если же вы все-таки решили использовать только одну группу, вам понадобится мощный кабель, который должен выдержать нагрузку, возникающую от всех включения приборов в квартире. Однако для разводки и расключения коробок это не совсем удобно.
Одна группа из четырех розеток:

Две группы из розеток и освещения:

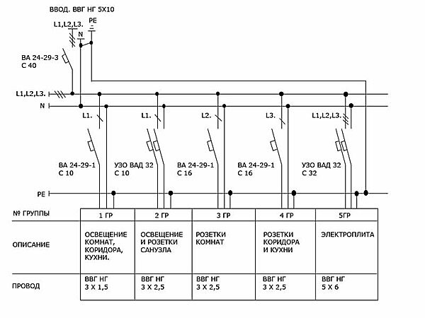
К примеру, группы трехкомнатной квартиры можно расположить следующим образом:
      1 – освещение жилых комнат, а также коридора, прихожей и кухни,
      2 – освещение и розетки туалета,
      3 – розетки комнат,
      4 – розетки коридора и кухни,
      5 – электроплита.
Вследствие того, что санузел представляет собой помещение с повышенной влажностью, его необходимо подключать отдельной группой, включающей и розетки, и освещение. Для большей электробезопасности необходима установка УЗО. Если же в доме имеются маленькие дети, то УЗО можно установить на каждую группу.
Однолинейная, или принципиальная, схема предназначена для правильной сборки электрощита и упрощения чтения чертежа квартиры с распределительными группами. Ниже представлен пример указанных 5-ти групп:

      На данной схеме показано подключение к трехфазному питанию. Ввод ВВГ НГ 5х10 - представляет из себя кабель 5 жил с сечением каждой жилы 10 кв.мм. питающий всю квартиру. N - это ноль. L1,L2,L3 - это номера фаз. PE - это заземление. Как видите по схеме заземление с нолем замыкаются. Ноль считается  той же самой землей только служащий для отрицательного поля. Заземление необходимо для защиты корпусов электроприборов, а так же предназначено для защиты стояков водоснабжения и тому подобное. ВА 24-29-3 С40 представляет из себя вводной автомат, при отключении которого - отключаются сразу все автоматы групп. Автоматы распределительных групп маркируются тем же способом. Маркировка \ или \\\ сообщает о количестве фаз. Если маркировано выглядит таким образом \ значит на группу подается одна фаза, в свою очередь если так \\\ следовательно три. И пару слов про провода. ВВГ НГ говорит о том, что это провод марки ВВГ с негорящей изоляцией,  в свою очередь 3х1,5 это значит 3 жилы - при этом сечение каждой жилы составляет 1,5 мм.кв.
С помощью однолинейной схемы, вы можете легко подсчитать, какое количество материалов вам понадобится для монтажа, - приобрести нужное количество автоматов и необходимый электрощит. А схема квартиры поможет вам подсчитать число розеток, выключателей и других устройств, а также метраж кабеля.
| Советы Расстояние выключателей и розеток от пола может быть каким угодно, лишь бы оно было удобно вам. На самом деле, распространенный «европейский стандарт», согласно которому розетки должны находиться на расстоянии 30 сантиметров от пола, а выключатели – 90 сантиметров, не существует. Просто такое размещение обычно является наиболее удобным. Розетки на кухне необходимо разместить над поверхностью рабочего стола. Точно также необходимо поступить и с письменным столом. Решите то, как вы будете подключать стационарную бытовую технику – вытяжку, водонагреватели, полотенцесушители. Вряд ли вы будете часто использовать розетку, поэтому лучше сразу подключить данные бытовые приборы через клеммник. Розетки под телевизор и Интернет можно объединить с электрическими розетками. Таким образом, вы сможете одновременно вести монтаж «слаботочки» и проводки. Определитесь с тем, сведете ли вы TV- и интернет-кабели в этажный щит подъезда или установите слаботочный щит в квартире. Коммутация проводов должна находиться только в распределительных коробках, иначе потом вы не сможете исправить имеющиеся ошибки. Чаще всего, в каждом помещении устанавливается своя коробка. Однако если в помещении много электроточек, они могут не поместиться в одной коробке, поэтому вам придется разбить ее на две. 
 
 
 
 | 
Нужен ваш плюс статье!
| Новинки статьи | В мастерской | Блог | |||||||||||||||||||||||||||||||||||||||||||||||||||||||||
| 
 
 
 
 
 
 | 
 
 
 
 
 
 | 
 
 Товары и услуги 
 
 
 
 
 
 | |||||||||||||||||||||||||||||||||||||||||||||||||||||||||