Монтаж внутренней разводки канализации
частного дома из полимерных.
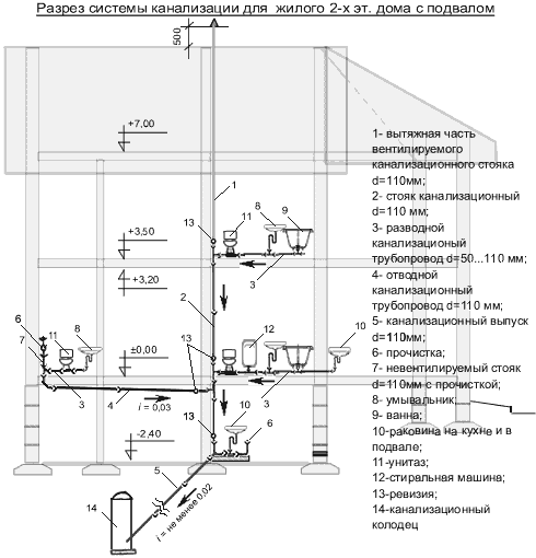
Схема стояка канализации в трёх уровнях.
Схема горизонтальной разводки канализации.
по устройству внутренней канализации.
Устройство и эксплуатация систем внутренней канализации предусматривает обязательное исполнение требований СНиП 2.04.01-85* "Внутренний водопровод и канализация зданий" и СНиП 3.05.01-85 "Внутренние санитарно-технические системы".
Устройство и эксплуатация систем канализации из полимерных материалов предусматривает обязательное исполнение требований СП 40-102-2000 "Проектирование и монтаж трубопроводов систем водоснабжения и канализации из полимерных материалов. Общие требования".
Материал труб для канализационных трубопроводов, прокладываемых в особых природных и климатических условиях, следует принимать согласно СНиП 2.04.03-85.
При устройстве системы канализации из полимерных труб и узлов для зданий высотой до 10 м допускается выполнять систему трубопроводов из безнапорных труб, при большей высоте здания следует применять напорные трубы.
В нашем варианте рассмотрена система канализационного трубопровода для 2-х этажного жилого дома высотой до 10 м, поэтому принята безнапорная система канализации.
Чем отличается напорная система трубопровода канализации от безнапорной системы:
А. Напорный внутренний трубопровод (в зависимости от полимерных материалов) соединяется на сварке враструб или на клею в раструб.
Б. Безнапорный трубопровод - механическим путём с помощью разъёмных раструбных узлов.
Герметичность соединений безнапорного трубопровода обеспечивается за счет конструкции соединения элементов трубопровода и технологичности при монтаже.
Соединение отводящего трубопровода из полимерных труб и узлов со стояками надлежит выполнять на раструбе с уплотнительным кольцом.
Эти соединения должны быть расположены в местах доступных для ремонта и осмотра.
Фланцевые соединения используются в местах перехода трубопровода на чугунные или стальные трубы или для подключения к оборудованию.
Монтаж канализационных систем следует начинать при строительной готовности объекта в соответствии со СНиП 3.05.01до начала монтажа внутренних санитарно-технических систем должны быть выполнены следующие работы: "Внутренние санитарно-технические системы", т.е.
1) монтаж междуэтажных перекрытий, стен и перегородок, на которые будет устанавливаться санитарно-техническое оборудование;
2) устройство траншей для выпусков канализации до первых от здания колодцев и колодцев с лотками, а также прокладка вводов наружных коммуникаций санитарно-технических систем в здание;
3) устройство опор под трубопроводы, прокладываемые в подпольных каналах и технических подпольях;
4) подготовка отверстий, борозд, ниш и гнезд в фундаментах, стенах, перегородках, перекрытиях и покрытиях, необходимых для прокладки трубопроводов;
5) нанесение на внутренних и наружных стенах всех помещений вспомогательных отметок, равных проектным отметкам чистого пола плюс 500 мм;
6) установка оконных коробок, а в жилых и общественных зданиях - подоконных досок;
7) оштукатуривание (или облицовка) поверхностей стен и ниш в местах установки санитарных приборов, прокладки трубопроводов, а также оштукатуривание поверхности борозд для скрытой прокладки трубопроводов в наружных стенах;
8) установка в соответствии с рабочей документацией закладных деталей в строительных конструкциях для крепления оборудования и трубопроводов;
9) обеспечение возможности включения электроинструментов, на расстоянии не более 50 м один от другого;
10) остекление оконных проемов в наружных ограждениях, утепление входов и отверстий.
Монтаж стояков следует вести по схеме "снизу вверх".
 
         
        Отклонение канализационных стояков от вертикальной оси более чем на 2 мм на 1 м монтируемых труб НЕ ДОПУСКАЕТСЯ.
Раструбы труб, патрубков и фасонных частей (за исключением двухраструбных труб и муфт) на вертикальных и горизонтальных участках трубопроводной системы должны быть направлены навстречу течению сточной жидкости.
При сборке раструбных соединений с уплотнительными кольцами выполняются следующие операции:
a) очистка от загрязнений наружной поверхности гладкого конца детали или трубы и внутренней поверхности раструба;
b) очистка уплотнительного кольца от грязи и масел;
c) укладка уплотнительного кольца в жёлобок раструба;
d) смазка гладкого конца трубы или соединительной детали и уплотнительного кольца мыльным раствором, глицерином или их смесью (применять для смазки солидол или другие аналогичные смазки ЗАПРЕЩАЕТСЯ);
e) ввод гладкого конца в раструб до метки с обязательной проверкой качества сборки путём поворота собранных деталей относительно друг друга на угол до 45° с возвращением в монтажное положение вручную.
Закрепление хомутов опор на стояках и отводящих трубопроводах следует выполнять после соединения их с сантехническим оборудованием.
Диаметр канализационного стояка надлежит принимать по таблице 1 в зависимости от величины расчетного расхода сточной жидкости, наибольшего диаметра поэтажного отвода трубопровода и угла его присоединения к стояку.
Примечание: При применении пластмассовых труб в расчет принимается внутренний диаметр трубопровода.
Таблица 1.
| п/п | Диаметр поэтажного отвода, мм | Угол присоединения поэтажного отвода к стояку, град. | Максимальная пропускная способность вентилируемого канализационного стояка, л/с, при его диаметре, мм | |||
| 50 | 85 | 100 | 150 | |||
| 1 | 2 | 3 | 4 | 5 | 6 | 7 | 
| 1 | 50 | 90 | 0,8 | 2,8 | 4,3 | 11,4 | 
| 60 | 1,2 | 4,3 | 6,4 | 17,0 | ||
| 45 | 1,4 | 4,9 | 7,4 | 19,6 | ||
| 2 | 85 | 90 | - | 2,1 | - | - | 
| 60 | - | 3,2 | - | - | ||
| 45 | - | 3,6 | - | - | ||
| 3 | 100 | 90 | - | - | 3,2 | 8,5 | 
| 60 | - | - | 4,9 | 12,8 | ||
| 45 | - | - | 5,5 | 14,5 | ||
| Примечание: Диаметр канализационного стояка должен быть не менее наибольшего диаметра поэтажных отводов, присоединенных к этому стояку. | ||||||
Таблица 2.
СНиП 2-04-01-85 (выписка).
| п/п | Санитарные приборы | Секундный расход воды, л/с | Часовой расход воды, л/ч | Сво- бод- ный напор м | Расход стоков от прибора л/с | Минимальные диаметры условного прохода, мм | |||||
| общий | холод- ной | горя- чей | общий | холод- ной | горя- чей | подводки (водо- провода) | отвода (канали- зации) | ||||
| А | 1 | 2 | 3 | 4 | 5 | 6 | 7 | 8 | 9 | 10 | 11 | 
| 1 | Умывальник, рукомойник с водоразборным краном | 0,1 | 0,1 | - | 30 | 30 | - | 2 | 0,15 | 10 | 32 | 
| 2 | То же, со смесителем | 0,12 | 0,09 | 0,09 | 60 | 40 | 40 | 2 | 0,15 | 10 | 32 | 
| 3 | Раковина, мойка инвентарная с водоразборным краном | 0,15 | 0,15 | - | 50 | 50 | - | 2 | 0,3 | 10 | 40 | 
| 4 | Мойка со смесителем | 0,12 | 0,09 | 0,09 | 80 | 60 | 60 | 2 | 0,6 | 10 | 40 | 
| 5 | Ванна со смесителем (в том числе общим для ванн и умывальника) | 0,25 | 0,18 | 0,18 | 300 | 200 | 200 | 3 | 0,8 | 10 | 40 | 
| 6 | Ванна с водогрейной колонкой и смесителем | 0,22 | 0,22 | - | 300 | 300 | - | 3 | 1,1 | 15 | 40 | 
| 7 | Ванна ножная со смесителем | 0,1 | 0,07 | 0,07 | 220 | 165 | 165 | 3 | 0,5 | 10 | 40 | 
| 8 | Душевая кабина с мелким душевым поддоном и смесителем | 0,12 | 0,09 | 0,09 | 100 | 60 | 60 | 3 | 0,2 | 10 | 40 | 
| 9 | Душевая кабина с глубоким душевым поддоном и смесителем | 0,12 | 0,09 | 0,09 | 115 | 80 | 80 | 3 | 0,6 | 10 | 40 | 
| 10 | Гигиенический душ (биде) со смесителем и аэратором | 0,08 | 0,05 | 0,05 | 75 | 54 | 54 | 5 | 0,15 | 10 | 32 | 
| 11 | Нижний восходящий душ | 0,3 | 0,2 | 0,2 | 650 | 430 | 430 | 5 | 0,3 | 15 | 40 | 
| 12 | Колонка в мыльне с водоразборным краном холодной или горячей воды | 0,4 | 0,4 | - | 1000 | 1000 | - | 2 | 0,4 | 20 | - | 
| 13 | Унитаз со смывным бачком | 0,1 | 0,1 | - | 83 | 83 | - | 2 | 1,6 | 8 | 85 | 
| 14 | Унитаз со смывным краном | 1,4 | 1,4 | - | 81 | 81 | - | 4 | 1,4 | - | 85 | 
| 15 | Писсуар | 0,035 | 0,035 | - | 36 | 36 | - | 2 | 0,1 | 10 | 40 | 
| 16 | Писсуар с полуавтоматическим смывным краном | 0,2 | 0,2 | - | 36 | 36 | - | 3 | 0,2 | 15 | 40 | 
| 17 | Питьевой фонтанчик | 0,04 | 0,04 | - | 72 | 72 | - | 2 | 0,05 | 10 | 25 | 
| 18 | Поливочный кран | 0,3 | 0,3 | 0,2 | 1080 | 1080 | 720 | 2 | 0,3 | 15 | - | 
| 19 | Трап условным диаметром, мм: | ||||||||||
| 20 | 50 | - | - | - | - | - | - | - | 0,7 | - | 50 | 
| 21 | 100 | - | - | - | - | - | - | - | 2,1 | - | 100 | 
С целью уменьшения вероятности засорения в месте соединения двух стояков в один выпуск устанавливают косой тройник и отвод под углом 135°.
 
        При переходе стояка в горизонтальный трубопровод ЗАПРЕЩАЕТСЯ применять отвод 90° (87,5°).
ЗАПРЕЩАЕТСЯ присоединение стояков к горизонтальным транзитным трубопроводам с помощью тройника 90° (87,5°) (кроме чердака зданий).
Нижний отвод стояка следует монтировать не менее чем из двух отводов по 45° или трех отводов по 30° или из четырех отводов по 22,5°.
В необходимых случаях возможно применение отводов 45° + 30°, или 45° + 22,5°, или 45° + 2 х 22,5°.
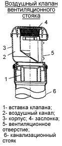
Во избежание разряжения в канализационных трубах и обратного тока сточных водстояк канализации не должен иметь глухого верхнего конца - вертикальная канализационная труба должна быть выведена на крышу для вентиляции.
Вентиляцию сети необходимо предусматривать через вентиляционные стояки, присоединяемые к высшим точкам трубопроводов.
 
        Сети бытовой и производственной канализации, отводящие сточные воды в наружную канализационную сеть, должны вентилироваться через стояки, вытяжная часть которых выводитсяна высоту: через кровлю или сборную вентиляционную шахту здания
| a) от плоской неэксплуатируемой кровли .......... 0,3 м; | 
| b) скатной кровли .................................................0,5 м; | 
| c) эксплуатируемой кровли ................................. 3,0 м; | 
| d) обреза сборной вентиляционной шахты ........ 0,1 м. | 
Диаметр вытяжной части канализационного стояка должен быть равен диаметру сточной части стояка.
Допускается объединять поверху одной вытяжной частью несколько канализационных стояков.
Диаметр вытяжного стояка для группы объединенных канализационных стояков частного жилого дома, а также диаметры участков сборного вентиляционного трубопровода, объединяющего канализационные стояки, следует принимать не менее 100 мм.
Присоединение дополнительного вентиляционного стояка к канализационному следует предусматривать снизу ниже последнего нижнего прибора или сверху - к направленному вверх отростку косого тройника, устанавливаемого на канализационном стояке выше бортов санитарно-технических приборов или ревизий, расположенных на данном этаже.
Сборный вентиляционный трубопровод, объединяющий вверху канализационные стояки, надлежит предусматривать с уклоном 0,01 в сторону стояков.
Выводимые выше кровли вытяжные части канализационных стояков следует размещать от открываемых окон и балконов на расстоянии не менее 4 м (по горизонтали).
ВНИМАНИЕ!
Не допускается соединять вытяжную часть канализационных стояков с вентиляционными системами и дымоходами.
Допускается предусматривать невентилируемые канализационные стояки:
a) в одноэтажных жилых домах;
b) в частных 2-3 этажных жилых домах, если предусмотрено дополнительно не менее одного вентилируемого стояка.
Невентилируемый канализационный стояк должен заканчиваться прочисткой, устанавливаемой в раструб прямого отростка крестовины или тройника на уровненаиболее высоко расположенных приборов. присоединения к этому стояку
На сетях внутренней бытовой и производственной канализации следует предусматривать установку ревизий или прочисток:
 
        a) на стояках (при отсутствии на них отступов) - в нижнем и верхнем этажах, а при наличии отступов - также и в вышерасположенных над отступами этажах;
b) в жилых зданиях высотой 5 этажей и более - не реже чем через три этажа;
c) в начале участков (по движению стоков) отводных труб при числе присоединяемых приборов 3 и более, под которыми нет устройств для прочистки;
d) на поворотах сети - при изменении направления движения стоков, если участки трубопроводов не могут быть прочищены через другие участки.
Ревизии и прочистки монтируют в трубопроводах на местах возможного засора, как на прямолинейных участках, так и на резких поворотах.
Отдельная ревизия на каждом участке трубопровода позволяет устранить проблемы с прочисткой "узких мест" в случае засора трубопровода.
На стояках, при отсутствии на них отступов, ревизии устанавливают в подвальном или на первом этаже дома. А при наличии на стояке отступов - также и в вышерасположенном этаже над отступом.
 
        Прочистка отличается от ревизии тем, что через неё можно пробить засор лишь в одном направлении.
Под прочистку можно приспособить отвод или тройник трубопровода. Заглушку, закрывающую прочистку, чаще всего изготавливают из дерева с рукояткой из проволоки. Иногда для этого достаточно подобрать по диаметру нужный обрезок дерева со снятой корой, обернуть его мешковиной и заглушить отверстие в прочистке.
Чтобы обеспечить полную герметичность - заглушку замазывают шпаклёвкой. При необходимости шпаклёвку разбивают и за проволоку вынимают заглушку из прочистки.
Ревизии обычно имеют стандартные заглушки. В чугунных ревизиях крышка крепится на четырёх болтах, плотно притягивая смазанную маслом резиновую прокладку ревизии.
Пластиковые ревизии закрываются винтовой крышкой с резиновой прокладкой.
На горизонтальных участках сети канализации наибольшие допускаемые расстояния между ревизиями или прочистками надлежит принимать согласно таблице 3.
Таблица 3.
между ревизиями или прочистками -
| п/п | Диаметр трубопровода, мм | Расстояние, м, между ревизиями и прочистками в зависимости от вида сточных вод | Вид устройства | |
| производственные незагрязненные и водостоки | бытовые и производственные, близкие к ним | |||
| 1 | 2 | 3 | 4 | 5 | 
| 1 | 50 | 15 | 12 | Ревизия | 
| 2 | 50 | 10 | 8 | Прочистка | 
| 3 | 100-150 | 20 | 15 | Ревизия | 
| 4 | 100-150 | 15 | 10 | Прочистка | 
При монтаже важно выполнить точную стыковку ревизии с трубопроводом. В раструб ревизии вдвигают трубу, и одновременно к противоположному торцу ревизии подводят встык другую трубу.
Против ревизий на стояках при скрытой прокладке следует предусматривать люки размером не менее 30х40 см.
Горизонтальные трубопроводы канализации следует прокладывать с уклоном.
Безнапорные участки трубопроводов диаметром 40-50 мм следует прокладывать с уклоном 0,03, а диаметром 85 мм и 110 мм - с уклоном 0,02.
Наибольший уклон трубопроводов не должен превышать 0,15 (за исключением ответвлений от приборов длиной до 1,5 м).
 
        При монтаже канализационных трубопроводов раструбы труб и фасонных частей (кроме двухраструбных муфт) должны быть направлены против движения воды.
 
        ЗАПРЕЩАЕТСЯ применять одноплоскостные крестовины на горизонтальных участках канализации, отводящей загрязнённые сточные воды.
Узлы поворотов самотечных трубопроводов в горизонтальной плоскости следует выполнять не менее чем из двух фасонных частей (два или более отводов, тройник и отвод и т.д.).
В период монтажа открытые концы трубопроводов необходимо временно закрывать инвентарными заглушками.
Прокладку отводных трубопроводов от приборов, устанавливаемых в уборных жилых зданий, раковин и моек в кухнях, умывальников и других подсобных помещениях следует предусматривать над полом; при этом необходимо предусматривать устройство облицовки и гидроизоляции.
В бытовых помещениях допускается предусматривать прокладку труб на глубине 0,1 м от поверхности пола до верха трубы.
Канализационные трубопроводы, прокладываемые в помещениях, где по условиям эксплуатации возможно их механическое повреждение, должны быть защищены, а участки сети, эксплуатируемые при отрицательных температурах, - утеплены.
Для внутренней канализации зданий на вечномёрзлых грунтах следует применять канализационные трубы и соединительные частииз полиэтилена и других синтетических материалов.
Подогрев канализационных стоков в случае необходимости следует обеспечивать дополнительным сбросом водопроводной воды.
при устройстве систем из полипропиленовых труб и узлов.
При производстве работ по монтажу систем внутренней канализации необходимо соблюдать общие требования СНиП 12-03, СНиП 12-04 и отраслевых инструкций по технике безопасности.
Нужен ваш плюс статье!
| Всего комментариев: 0 | |
 
  
  
      
 
                         
                         
                         
                         
                         
                         
                         
                         
                         
                         
                         
                         
                         
                        