 
 
Несъемная опалубка из пенополистирола предназначена для быстрого возведения зданий различной этажности. На сегодняшний день эта технология превосходит все известные способы строительства по теплозащите, звукоизоляции, комфортности, простоте, долговечности, скорости и стоимости строительства. Технология строительства с несъемной опалубкой позволяет строить абсолютно любые объекты: жилые, общественные, специального назначения.
ЧТО ПРЕДСТАВЛЯЕТ СОБОЙ НЕСЪЕМНАЯ ОПАЛУБКА ?
Несъемная опалубка предлагаемая представляет собой специальную конструкцию: две пластины из специального строительного пенополистирола, соединенные между собой перемычками , что позволяет исключить нарушения теплопроводности, как на стадии монтажа, так и в процессе эксплуатации здания.
ИЗ ЧЕГО СОСТАИТ НЕСЪЕМНАЯ ОПАЛУБКА ?
Несъемная опалубка состоит из строительного пенополистирола. Пенополистирол — легкий ячеистый материал, состоящий из атомов водорода и углерода. Пенополистирол был открыт в 1951 году в Германии и сразу же стал применяться в качестве теплоизолятора для обшивки наружных стен строений. Поскольку полистирол безопасен (из него изготовляют одноразовую посуду), пенополистирол наследует это его свойство. Структура пенополистирола обеспечивает его уникальные теплоизоляционные свойства, он водостоек, отличается стабильностью характеристик при эксплуатации в регионах с суровым и влажным климатом, обладает и высокой механической прочностью, не впитывает влагу.
В отличие от других строительных материалов, несъемная опалубка из пенополистирола не радиоактивена. Пенополистирол не содержит вещества, питающие микроорганизмы, поэтому не подвержен воздействию грызунов, плесени, грибков и бактерий. Если пенополистирол подвергается кратковременному воздействию пламени он оплавляется вокруг источника огня, но не возгорается, и, соответственно, огонь не распространяется. По результатам пожарных испытаний, проведенных во ВНИИПО МВД РФ, получены следующие данные: предел огнестойкости стены — 2,5 часа, скорость распространения огня равна нулю.
МОНТАЖ НЕСЪЕМНОЙ ОПАЛУБКИ ?
Монтаж несущих стен по технологии с применением пенополистирольной несъемной опалубки не вызывает затруднений и доступен даже непрофессионалу. Сначала монтируется ограждающая конструкция, которая затем заполняется бетоном. Перекрытия в таком доме могут быть деревянными, из монолитного или сборного железобетона. Выбор вида перекрытия определяется проектом здания.
Ассортимент выпускаемых модулей позволяет выбирать элементы, необходимые для формирования не только прямых стен, но и эркеров. Модули опалубки имеют полости, которые в процессе строительства армируются и заливаются бетоном. Для формирования арок и других проемов нестандартной формы достаточно проделать их в пенополистирольном модуле до заливки бетона и закрепить снизу лист опалубки, например, из фанеры.
Пенополистирольные элементы несут одновременно функции опалубки, утеплителя, звукоизоляции, а в технологических отверстиях могут прокладываться различные инженерные коммуникации — электроосвещение, системы отопления и кондиционирования. И в результате произведенных технологических операций — монтажа стеновых блоков и плит перекрытий — сооружается здание, которое можно рассматривать как жесткую пространственную рамную конструкцию, обрамленную пенополистирольной тепло- и звукоизоляционной оболочкой.
Дом готов — остается лишь проложить внутренние коммуникации и заняться отделкой дома.
ПОЧЕМУ ИМЕННО ДОМ ИЗ НЕСЪЕМНОЙ ОПАЛУБКИ ?
Идеально ровные стены и углы, прочность и долговечность конструкций, а также простота и высокая скорость возведения зданий.
Возможность возведения строительных объектов в сейсмоопасных районах, на проблемных грунтах, а также при реконструкции и утеплении фасадов зданий, строительстве пристроек и надстройке дополнительных этажей, при строительстве бассейнов, бань-саун и др. объектов с повышенной влажностью.
ТОЛЩИНА СТЕНОК по 5 см.

 
 
 
 
 
 










Параметры и размеры.
| № п/п | Наименование блоков | Условное обозначение | Габаритные размеры, мм(длина х ширина х высота) 
 | 
| 
 | Блок угловой левый | БУЛ | 600х350х263 | 
| 
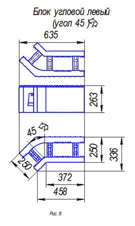
 | Блок угловой левый (угол 45°) | БУЛ45 | 635х326х263 | 
| 
 | Блок угловой левый радиальный | БУЛР | 600х350х263 | 
| 
 | Блок прямой | БП | 1000х250х263 | 
| 
 | Блок угловой правый | БУП | 600х350х263 | 
| 
 | Блок угловой правый (угол 45°) | БУП45 | 635х326х263 | 
| 
 | Блок угловой правый радиальный | БУПР | 600х350х263 | 
| 
 | Блок круговой правый длинный | БКПД | 600х250х263 | 
| 
 | Блок круговой левый длинный | БКЛД | 600х250х263 | 
| 
 | Блок круговой правый короткий | БКПК | 400х250х263 | 
| 
 | Блок круговой левый короткий | БКЛК | 400х250х263 | 
| 
 | Блок Т-образный короткий | БТК | 500х625х263 | 
| 
 | Блок Т-образный длинный | БТД | 1000х375х263 | 
| 
 | Блок потолочный | БПт | 600х190х250 | 
| Всего комментариев: 0 | |
 
  
  
      
 
                         
                         
                         
                         
                         
                         
                         
                         
                         
                         
                         
                         
                         
                        