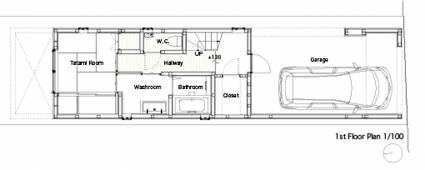
Расположенный в тихом районе, где в среднем дома в 2 этажа, на участке есть узкий аспект 4,6 метров в ширину и 17,3 метров в длину, очень типично для центра города Токио. Цель в том, чтобы создать иллюзию открытой связи с окрестностями, все еще прививая чувство личной жизни желаемого большинством владельцев дома в пределах Токио.
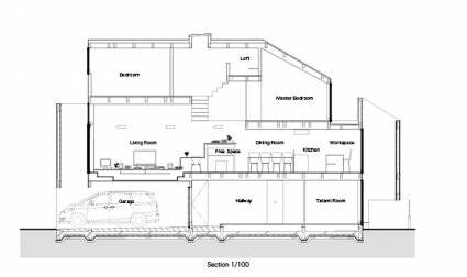
Для того чтобы создать это чувство уединения, дизайн стены была зарегистрирована на Северном и Южном стороне дома. Южная стена срезан таким образом, что позволяет свету с востока заполнить интерьер дома, но в то же время оградить жителей от суровых лучей заходящего солнца. Северная стена используется в качестве отражающего борта, захватив южный свет и яркости интерьера весь путь вниз на первый этаж, где свет достигается наиболее трудно.
На 2-ом уровне, который полностью открыт и подключен, очень высокий потолок для гостиной и низкий потолок на кухне, чтобы дифференцировать пространство. Гостиная также разработан с набором шагов, работающих вокруг трех сторон комнаты, чтобы создать встроенный диван и активность пространство усиливая ощущение открытости. В центре дома проходит железная лестница.
Спальня включает в себя наклонный потолок, который добавляет уникальный элемент в комнату. Пространство чердака выходит на лестничную клетку.
Корректировки дизайна, сделанные в разделе планирования дома, генерирует творческое использование линии видимости и высоты дифференциации, чтобы создать ощущение большого дома с узкой шириной.
| Всего комментариев: 0 | |
 
  
  
      







 
                         
                         
                         
                         
                         
                         
                         
                         
                         
                         
                         
                         
                         
                        